Loading...

Tư vấn kinh phí và thiết kế nhà 1 tầng thoáng mát, tiết kiệm

24/10/2025
318

Hỏi: Tôi có mảnh đất rộng 2.000m2 ở Thạch Thất (Hà Nội). Nay tôi muốn làm nhà 1 tầng đơn giản, thông thoáng với chi phí vừa phải.

Tôi muốn thiết kế nhà gồm phòng khách, 3 phòng ngủ (cho ông bà, vợ chồng tôi, 2 con trai) và khu bếp ăn. Nếu có sảnh rộng và hàng hiên bao quanh thì càng tốt. Tôi dự kiến kinh phí xây nhà là 800 triệu đồng

Mảnh đất của tôi nằm ở ngã ba nên cổng chính bị đường đâm thẳng vào nhà và phía gần sau có góc nhọn. Rất mong được kiến trúc sư tư vấn giúp tôi chi phí xây dựng cũng như cách thiết kế để khắc phục nhược điểm này.

Chân thành cảm ơn!

Kim Hoa

Kiến trúc sư tư vấn:

Thông thường, cổng chính nằm ở ngã ba sẽ mang lại cho bạn cảm giác không an toàn và không được thuận tiện trong sinh hoạt. Bạn có thể bố trí lối vào lệch khỏi ngã ba bởi mảnh đất nhà bạn tiếp giáp đường khá nhiều. Trong khi đó, bạn có thể tận dụng góc thừa của khu đất để trồng cây xanh. Bằng cách này, bạn sẽ có được cảm giác về một không gian xanh mát, mềm mại và vuông vắn.

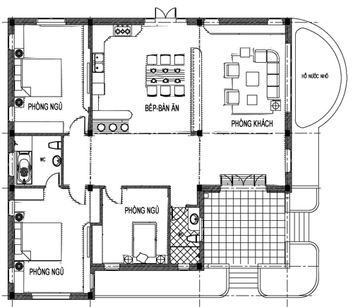
Gia đình bạn cần 1 phòng khách, 3 phòng ngủ, bếp ăn cùng sảnh, hàng hiên thoáng mát. Vì vậy, bạn chỉ cần xây dựng nhà 1 tầng trên diện tích 160m2. Theo đó, các phòng ngủ sẽ có diện tích từ 18-20m2. Một phòng ngủ trong đó có WC riêng. Ngoài ra còn có một nhà vệ sinh chung cho cả nhà.

Mặt khác, để tách biệt với các đường đi bên ngoài nhờ các mảng vườn, bạn nên bố trí ngôi nhà nằm giữa khu đất. Bên cạnh đó, bạn nên thiết kế gara ngoài trời, giàn che trồng thiên lý, mướp hương, bầu bí... Phần hiên sau dùng để trồng rau. Đồng thời, sân nhà nên đổ khuôn bê tông đục lỗ hoặc bê tông xếp có khe hở cho cỏ mọc, tạo vẻ đẹp tự nhiên cho công trình.

Phối cảnh nhà 1 tầng giữa vườn cây xanh. Sân bê tông có các khe hở
trồng cỏ.

Ngoài ra, để không gian sống luôn thoáng mát, việc xây tường dày và cách mở cửa cũng rất quan trọng. Nếu mở cửa đúng điểm đón gió, thoát gió sẽ giúp ngôi nhà luôn có khí tươi lưu thông, mùa đông ấm áp và mát mẻ khi hè tới. Nhà 1 tầng nên có chiều cao vừa phải, tầm khoảng 3m là đẹp, tiết kiệm nhân công, vật liệu và thuận tiện khi sử dụng.

Để xây dựng nhà một tầng, bạn có thể áp dụng các gói kinh phí sau: Gói tiết kiệm 4,3 triệu đồng/m2; gói bình thường 4,8 triệu đồng/m2 và gói khá 5,8 triệu đồng/m2.

Sơ đồ thiết kế các phòng chức năng trong nhà.

Đây là những gói đã bao gồm nhân công, vật liệu xây thô, vật liệu hoàn thiện, thiết bị vệ sinh, thiết bị chiếu sáng, cầu thang, bếp, gạch ốp lát, lan can, cửa. Bạn nên căn cứ vào mức độ đầu tư để cân đối lựa chọn vật tư cho phù hợp, đảm bảo chất lượng, thẩm mỹ công trình.

Đối với trường hợp cụ thể của bạn, gói 4,3 triệu đồng/m2 là phù hợp nhất. Bạn nên sử dụng các vật liệu, thiết bị do Việt Nam sản xuất. Gia chủ có thể dành thời với kiến trúc sư tìm tòi các chủng loại, mẫu mã thẩm mỹ, chất lượng phù hợp nhất.

(Theo Vnexpress)
  • Chia sẻ qua viber bài: Tư vấn kinh phí và thiết kế nhà 1 tầng thoáng mát, tiết kiệm
  • Chia sẻ qua reddit bài:Tư vấn kinh phí và thiết kế nhà 1 tầng thoáng mát, tiết kiệm

Danh sách tin tức 

Tin tức nổi bật 

Loading...

Dự án nổi bật

Không có thông tin cho loại dữ liệu này
Loading...

Tin đăng nổi bật